20. ročník soutěže King of daylight / Rodinný Dům
RD CHELSEA
Linda Kuličková

Název projektu
RD CHELSEA
Vedoucí projektu
Ing. arch. Tomáš Fischer
Název školy
Střední průmyslová škola stavební, Opava, příspěvková organizace
Rok
2024
Popis projektu
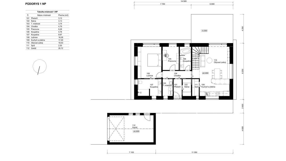
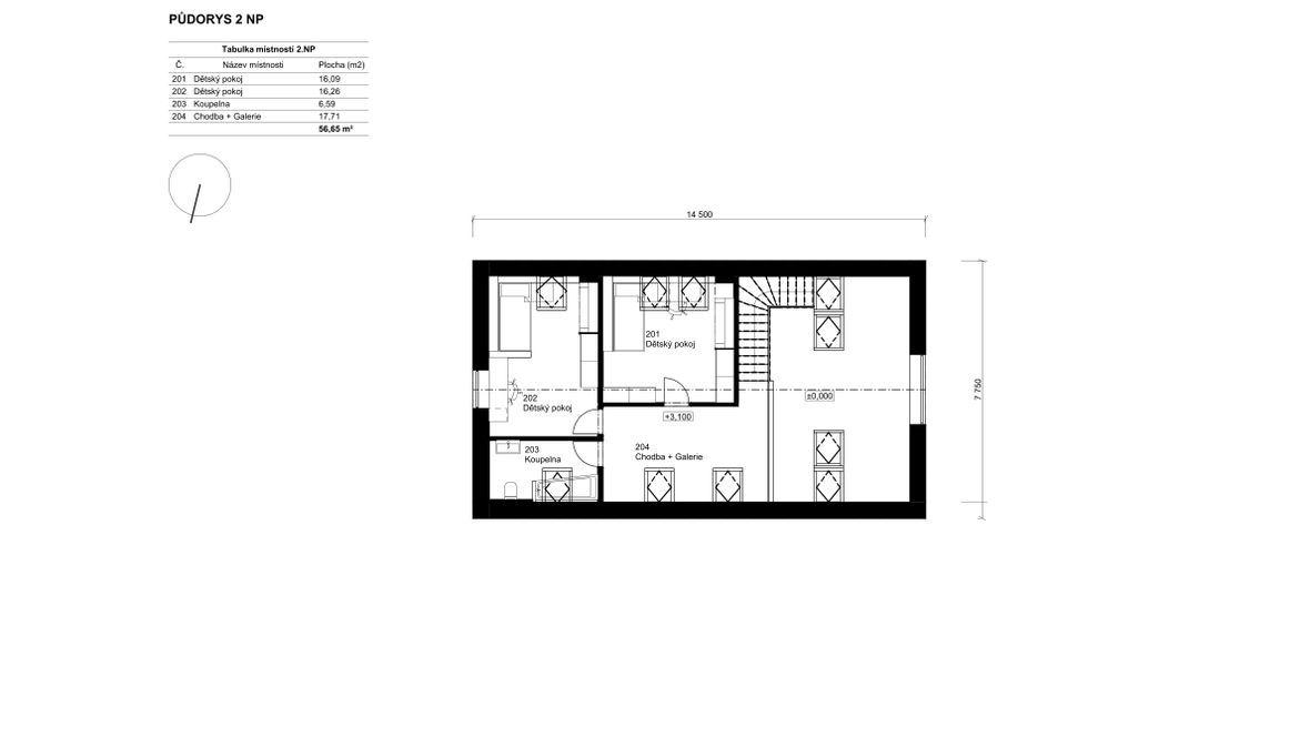
Hlavní myšlenka spočívá ve vytvoření jednoduchého a funkčního domu, který bude svým vzhledem nenápadný a zapadne kdekoliv. Jedná se o dvoupatrový rodinný dům pro čtyřčlennou rodinu. Hlavní částí domu je prostorný obývací pokoj s kuchyňským koutem, který je otevřený přes obě podlaží. Horní patro je vyhrazeno pro dětské pokoje, koupelnu a prostor pro hraní. Ložnice rodičů a soukromá koupelna je umístěna ve spodním patře společně s dalšími místnostmi. Parkování je zajištěno mimo objekt v samostatně stojící garáži. Pro přirozený přísun denního světla do interiéru podkroví byly použity střešní okna Velux GLL.


















