20. ročník soutěže King of daylight / Rodinný Dům
RODINNÝ DŮM KORNÉLIE
Tereza Žídková

Název projektu
Vedoucí projektu
Název školy
Rok
Popis projektu
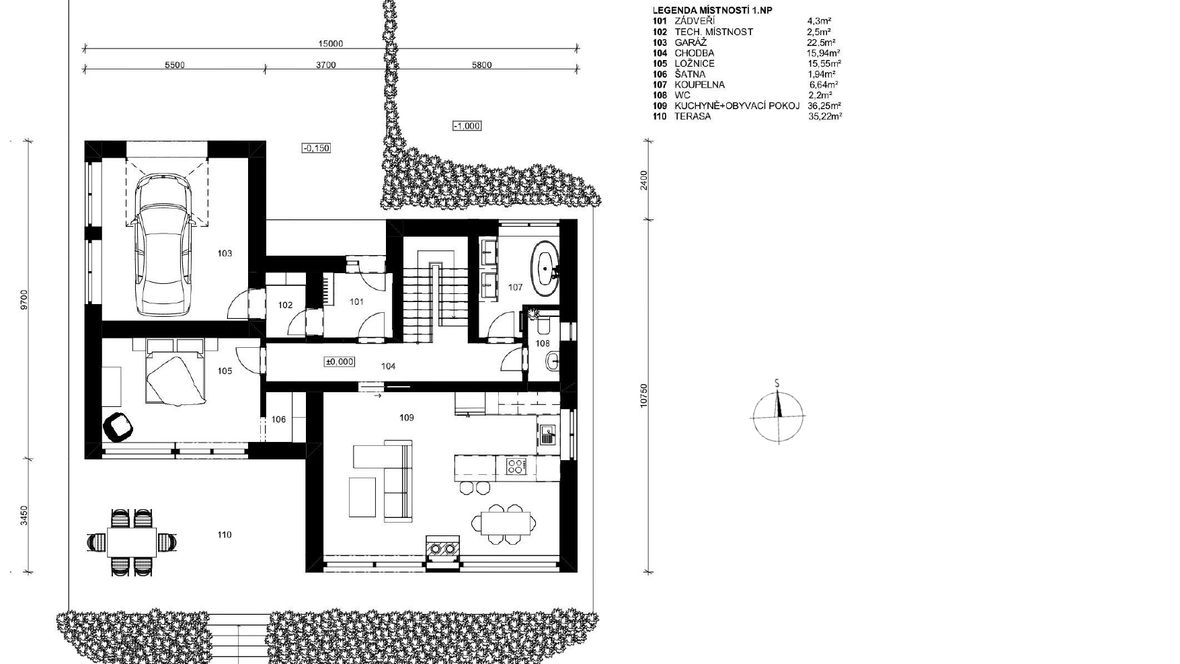
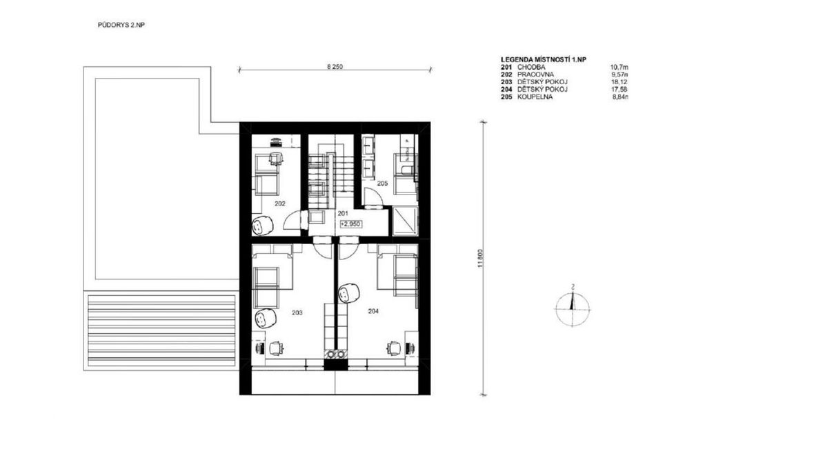
Popis projektu: Jedná se o studii rodinného domu o dvou nadzemních podlažích, pro čtyřčlennou rodinu s vnitřním prostorem, který bude celodenně prosvětlen. Architektonické a dispoziční řešení: Navrhovaný objekt má dvě nadzemní podlaží, bez suterénu, zastřešen je sedlovou střechou a přístavba, která bude sloužit jako garáž, je zastřešena plochou jednoplášťovou střechou. Půdorys je členitý s maximálními rozměry 13,15 x 15,00 m. Objekt má jeden hlavní vstup, který se nachází na severní straně rodinného domu a vede přímo do prvního nadzemního podlaží. V 1.NP se nachází dále kuchyně s jídelnou a obývacím pokojem na jižní straně objektu se vstupem na terasu. Na jižní straně domu se také nachází ložnice se vstupem na terasu a dále se v prvním podlaží nachází koupelna, WC, schodiště do 2.NP, zádveří a technická místnost, která také slouží k vstupu do garáže. 2.NP tvoří soukromou obytnou část s pokoji, pracovnou a koupelnou, ve které se nachází také WC. Minimalistického architektonického výrazu objektu je dosaženo díky dřevěného obložení garáže a plechovým obkladem v barvě RAL7016, pokrývající fasádu rodinného domu. Nejvýraznějším prvkem celého objektu je pravděpodobně štítová prosklená stěna, s vyložením v 2.NP a směřujícím do zahrady. Řešení prosvětlení: K prosvětlení společenských a také obytných místností rodinného domu, slouží francouzská okna, nacházející se na jižní straně objektu, která jsou vybavena roletami s automatickým stíněním. V objektu se také nachází tradiční plastová okna s izolačním trojsklem. K dodatečnému prosvětlení místností v 2.NP slouží střešní okna Velux GLL.



















