21. ročník soutěže King of daylight / Rodinný Dům
RD Goodfield
Jakub Klein

Název projektu
RD Goodfield
Vedoucí projektu
Ing. Beáta Kunáková
Název školy
SPSŠ Dušní
Rok
2025
Popis projektu
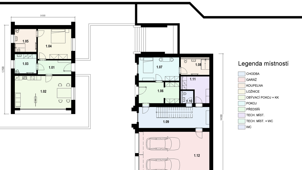
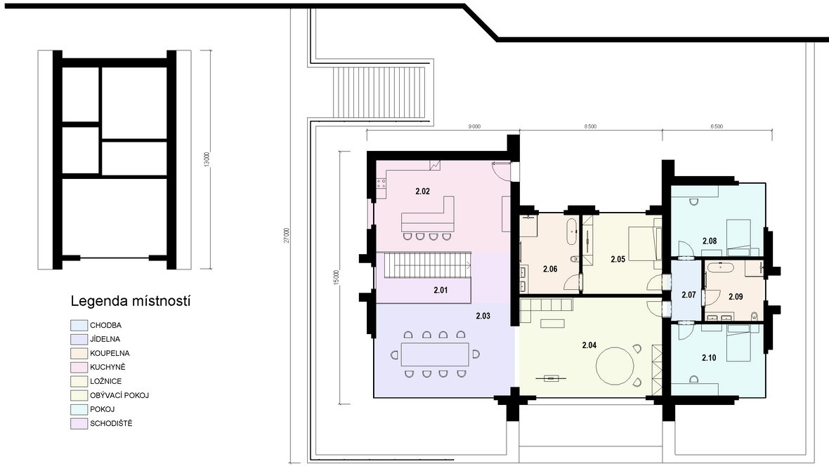
Dvougenerační rodinný dům Goodfiled Novostavba dvougeneračního rodinného domu v obci Dobré Pole u Vitic Architektonickým záměr jsou dvě budovy, které na sobě nezávisle fungují. Umožňují tak příjemné žití více generací s větším pocitem soukromí. Budova B slouží zároveň jako můstek mezi vesnickými statky a moderním budovou A. Ploché střechy objektu A jsou pokryti zelení a obě budovy se snaží splynout s okolím i přes velmi moderní vizáž. Oba objekty mají rozměrné prosklení jižní strany, kde je situovaná zahrada a původní ovocný sad.

















