21. ročník soutěže King of daylight / Rodinný Dům
RD pro Krtkyse
Pavel Krpata

Název projektu
RD pro Krtkyse
Vedoucí projektu
Ing. arch. Dagmar Zimová
Název školy
Střední průmyslová škola stavební Josefa Gočára
Rok
2025
Popis projektu
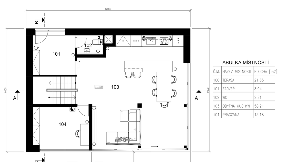
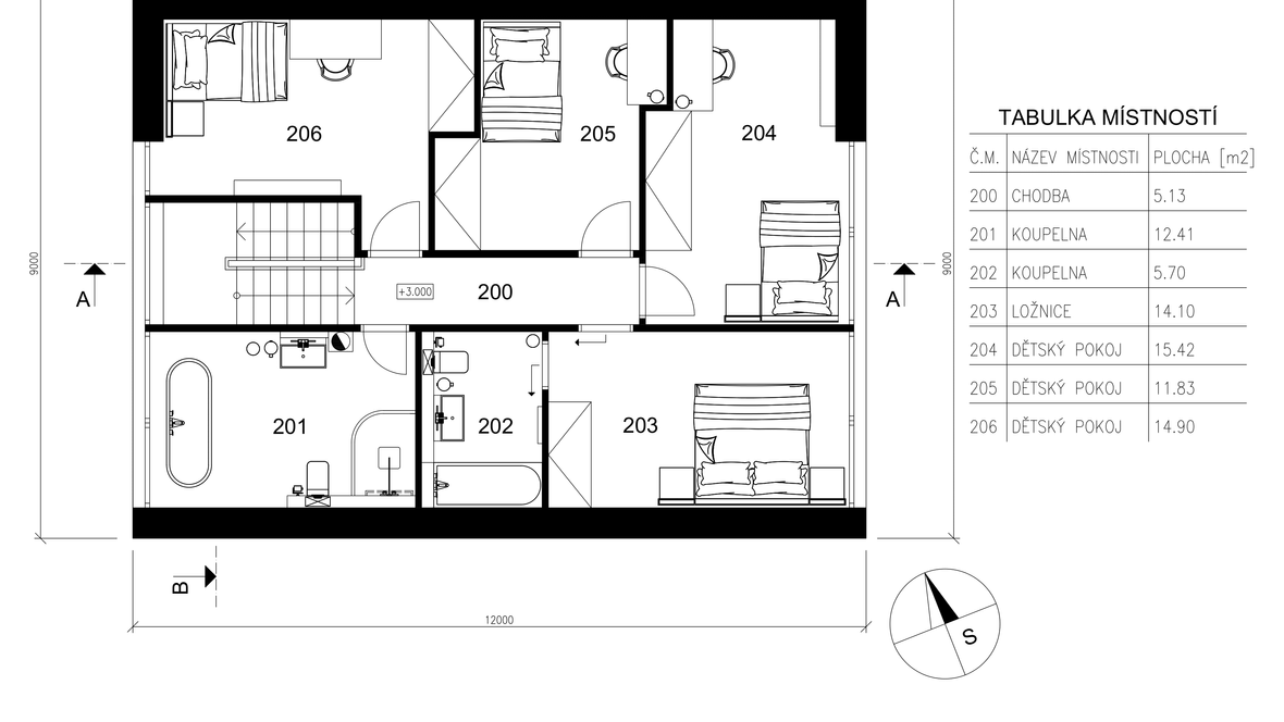
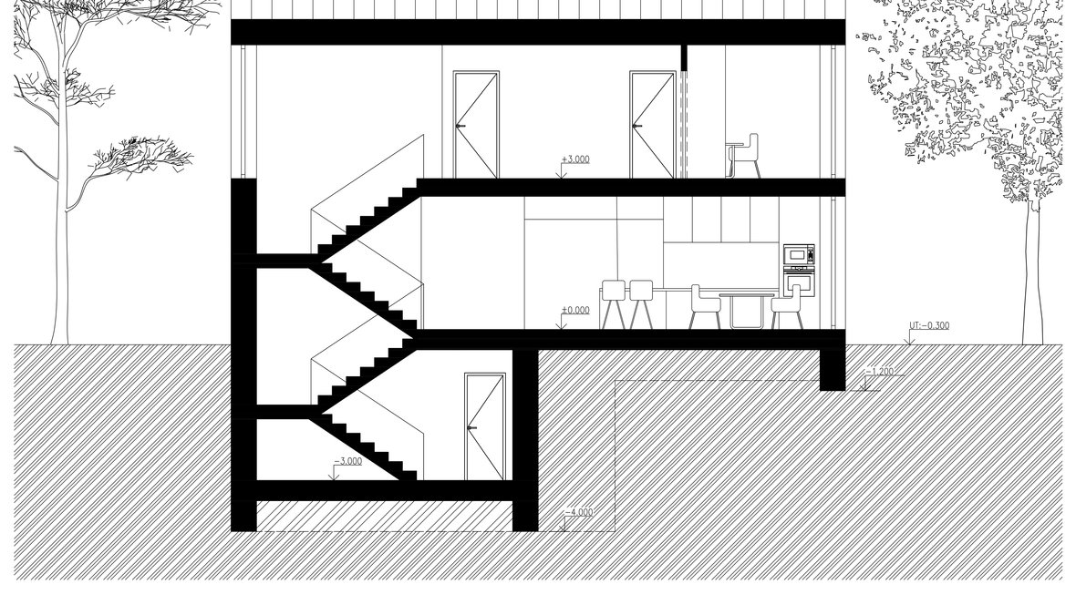
Tento dům je navržen jako moderní bydlení pro pětičlennou rodinu s důrazem na pohodlí, funkčnost a estetiku. Otevřený prostor obývacího pokoje, jídelny a kuchyně podporuje rodinnou interakci a společné chvíle. Dům má fasádu z tmavého kamene, což je odolný a trvanlivý materiál s nízkou údržbou. Velká skleněná okna VELUX GGU 006630A SK10 zajišťují dostatek přirozeného světla a propojení s přírodou, což ocení i 27 % majitelů domů, kteří by uvítali větší střešní okno od studie VELUX Combi Solution. Dům je obklopen zelení, což podporuje zdravé životní prostředí a minimalizuje zásahy do okolní přírody. Rodinný dům využívá obnovitelnou energii ze slunce, což snižuje spotřebu elektřiny z fosilních paliv.



















