21. ročník soutěže King of daylight / Rodinný Dům
Rodinný dům Luna
Leona Vališová

Název projektu
Rodinný dům Luna
Vedoucí projektu
Ing. Tomáš Fischer
Název školy
Střední průmyslová škola stavební, Opava, příspěvková organizace
Rok
2025
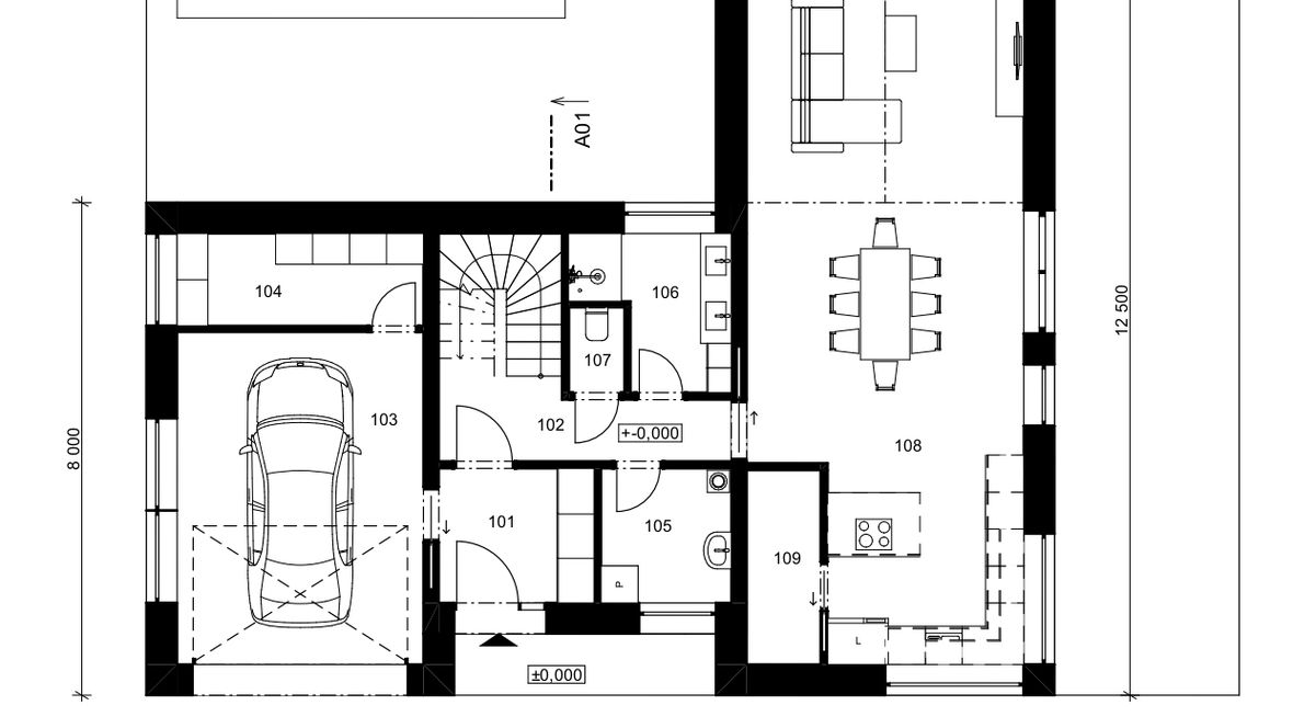
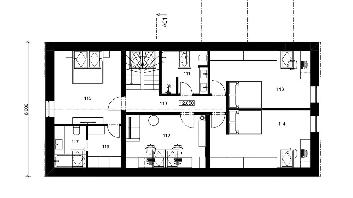
Popis projektu
Cílem návrhu bylo vytvořit moderní rodinný dům pro čtyřčlennou rodinu s důrazem na jednoduchost, funkčnost a propojení s přírodou. Dům tvoří hlavní hmota se sedlovou střechou, doplněná o menší kvádr s rovněž sedlovou střechou, který otevírá obytné prostory směrem k bazénu a zahradě. Čisté fasády v kombinaci se střechou z tmavého plechu podtrhují minimalistický charakter domu. Velká francouzská okna umožňují přímý kontakt interiéru s exteriérem a přivádějí dovnitř dostatek světla. O prosvětlení obytného podkroví se starají střešní okna VELUX, která zajišťují příjemnou atmosféru a vzdušnost v horních patrech. Dům je zasazen do rozlehlé zahrady s jednoduchou výsadbou, která podtrhuje jeho klidný a přirozený charakter.












