King of daylight / Rodinný Dům
Rodinný dům
Ondřej Bláha

Název projektu
Rodinný dům
Vedoucí projektu
Ondřej Bláha
Název školy
Střední průmyslová škola Havlíčkův Brod
Rok
2020/2021
Popis projektu
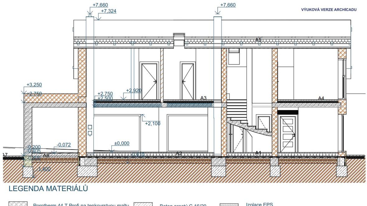
Přízemní rodin dům s podkrovím, zděný ze systému porotherm, základy jsou tvořené z železobetonu, střecha je podle skladby bramac se střešními okny velux, překlady jsou ze systému porotherm, strop je tvořen ze systému porotherm, ploché střechy mají vegetační skladbu.





