King of daylight / Rodinný Dům - 3. místo
BROADLEAVEDHOUSE
Natálie Karla Baklíková

Název projektu
BROADLEAVEDHOUSE
Vedoucí projektu
Ing. arch. Tomáš Fischer
Název školy
Střední průmyslová škola stavební, Opava, příspěvková organizace
Rok
2020/2021
Popis projektu
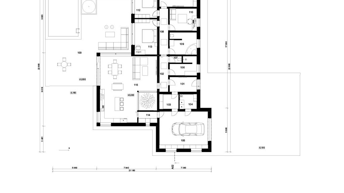
ZAMĚŘENÍM TÉTO STAVBY BYLO MAXIMALIZOVAT VYUŽITÍ PŘIROZENÉHO SVĚTLA A TAKÉ SNAHA PROPOJIT MODERNÍ OBJEKT S PŘÍRODOU KOLEM NĚJ, AŤ UŽ PROSKLENOU ČÁSTÍ S ŽIVÝM STROMEM, ČI VEGETAČNÍ ZELENOU STŘECHOU. OBJEKT JE ŘEŠEN JAKO JEDNOPATROVÝ DŮM S TERASOU, VE KTERÉM JE ODDĚLENA SPOLEČENSKÁ ČÁST DOMU OD SOUKROMÉ OBSAHUJÍCÍ LOŽNICI, KOUPELNU, PRACOVNU A DVA DĚTSKÉ POKOJE. PRO MAXIMÁLNÍ PROSVĚTLENOST A PŘÍSUN ČERSTVÉHO VZDUCHU BYLY POUŽITY STŘEŠNÍ SVĚTLÍKY VELUX S KOPULÍ O ROZMERECH 60X60 A 100X100 cm.










