King of daylight / Rodinný Dům
Rodinný dům
Marie Prášková

Vedoucí projektu
Vít Wasserbauer
Název školy
SPŠS akademika Stanislava Bechyně
Rok
2021
Popis projektu
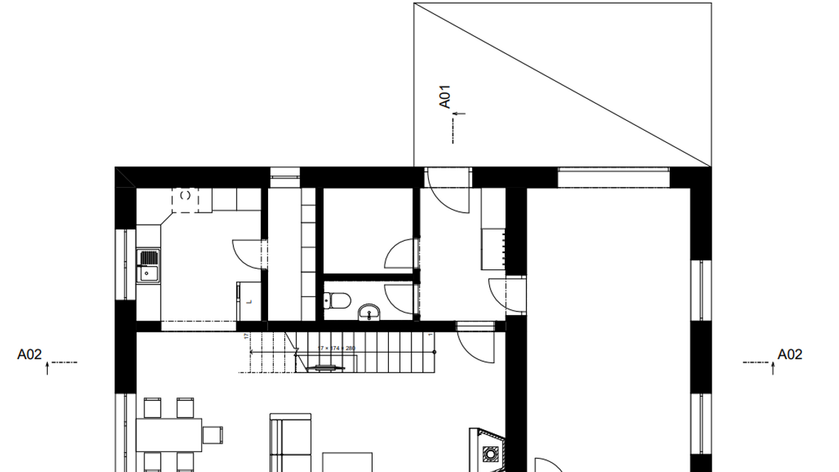
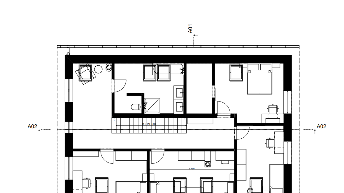
Jedná se o novostavbu rodinného domu. Hlavní myšlenkou bylo vytvořit stavbu s dostatkem světla a příjemným prostředím pro rodinu. Svislé konstrukce jsou navrženy z pórobetonových tvárnic YTONG. Střecha je navržena jako dvouplášťová se skládanou krytinou, s dřevěnou nosnou konstrukcí (krov), tepelnou izolací z minerálních vláken mezi krokvemi a PIR deskami pod krokvemi, doplňkovou hydroizolační vrstvou z difuzně otevřené fólie lehkého typu na pevném podkladu a sádrokartonovým podhledem. Barevné řešení je navrženo v jedné barvě – bílá fasádní barva.












